








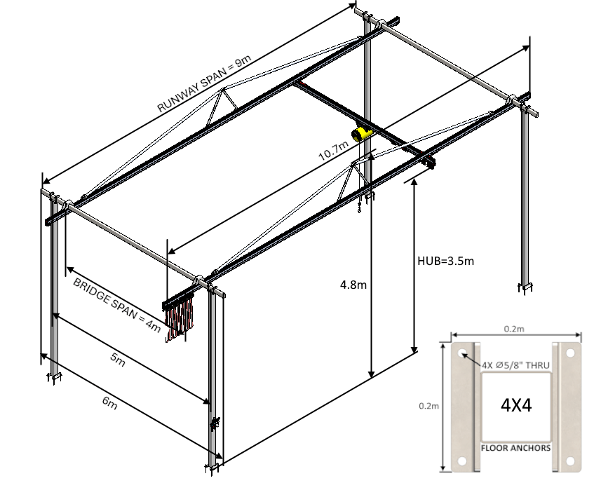
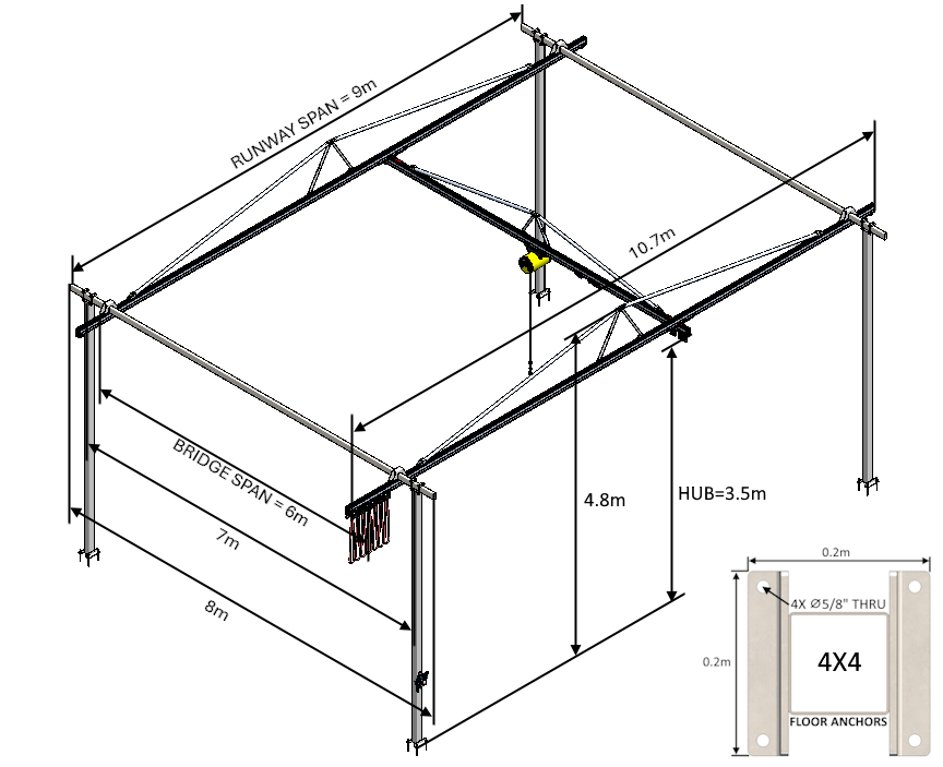
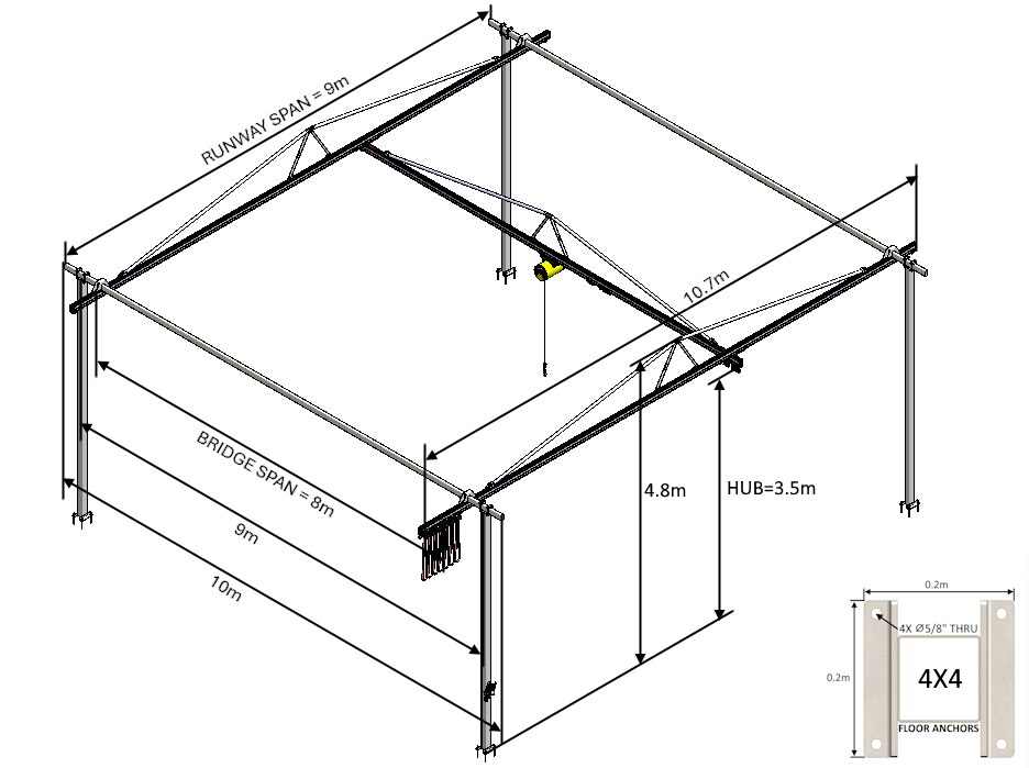
C100 Bridge Crane
Givens G-Rail™ Bridge Cranes are engineered for the lowest rail weight, the highest strength and greatest versatility.
Strength Features
- Ceiling-hung and floor-supported cranes are possible
- Spans up to 10m
- In most circumstances, cranes equipped with Slant Trusses can carry 2 bridges without an upgrade, but always consult an engineer
- Large columns allow the crane to be free-standing, so it does not have to be tied to building columns
- The runway supports itself over a large span; there is no need for I-beams to support the runway
- Accidental overloads are possible due to the strength
Lightweight Features
- G-Rail Cranes may be the lightest in the world
- The rail is very light yet extremely strong
- The crane profile of the G-Rail™ bridge crane, combined with Slant-Truss bolt-on reinforcements, creates one of the lightest lifting systems in the world.
Versatility Features
- Cantilevers are possible
- Open-ended cranes are possible
- Telescopes are possible
- Custom columns are possible
- Non-rectangular column arrangements are possible
- To a large extent, column positions can be shifted during the installation to fit around machinery
- The entire crane can often be set up or moved on a weekend
- Slant Trusses or Rail-on-Rail reinforcements can be added or removed using ordinary wrenches
Height Under Boom - 3.5 meters

C100 Bridge Crane
Sale price$15,207.00
